Office space design

Client
KOOLMETRIX

Area
300 s.m.

Design
AplusM

Construction
AplusM

Location
Athens, Greece

Photography
Kleanthis Dimitris

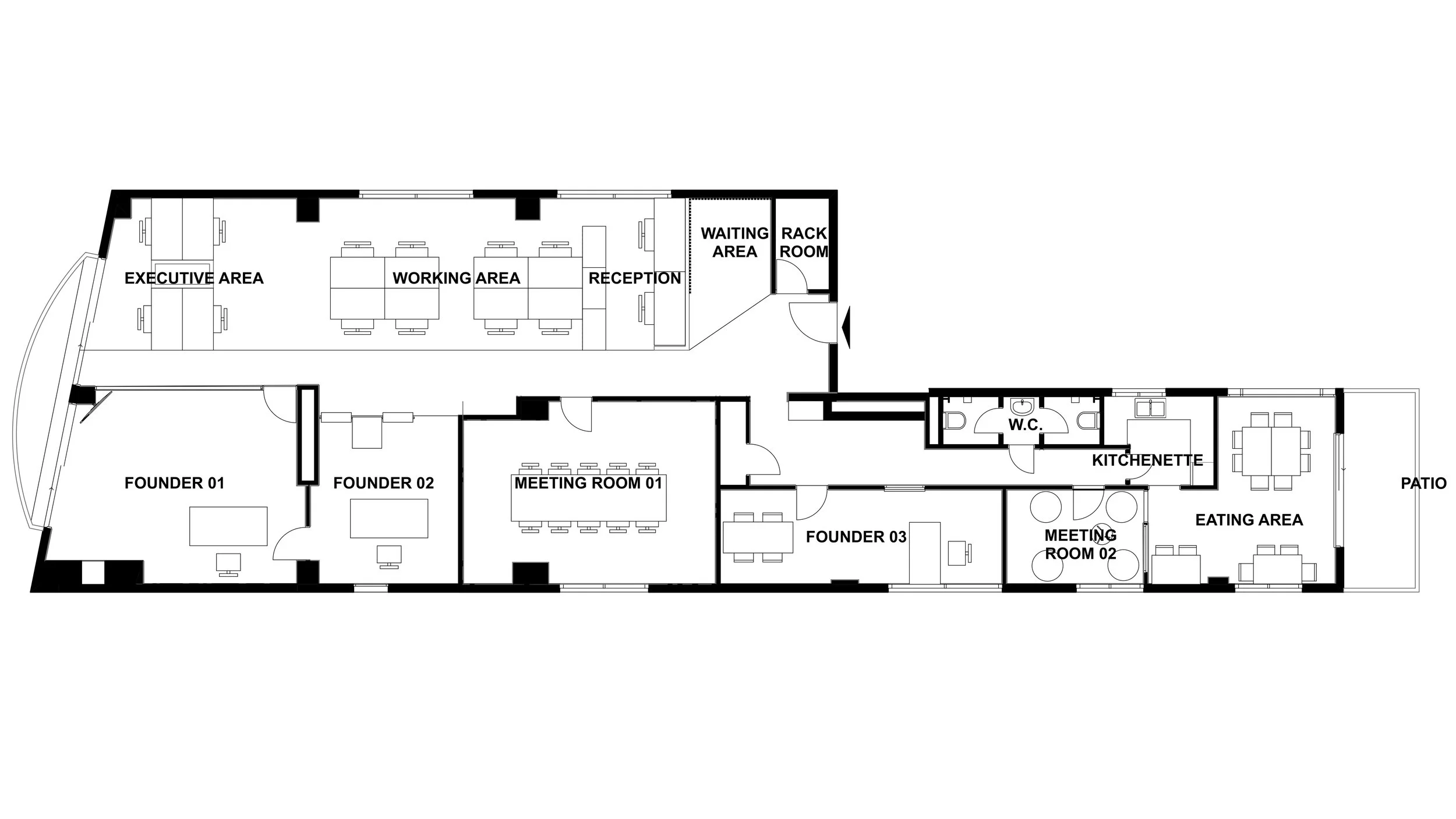
The space under study (total area of ​​300 sqm) is located in a typical office building, near Kifissias Avenue in Chalandri Attiki. The main request of the new company was the redefinition of both functional structure and aesthetic upgrade within the aim of rebuilding a modern environment capable of meeting the needs of the new user.

Towards this goal, the spatial organization has been redefined to serve the new character of the offices. Τhe key lines of the design was the recalculation of given spaces (reception, movement areas, working and meetings rooms, auxiliary spaces, etc.), the intertwining of uses and optimization of the space provided. More specifically, the reception area welcomes the visitor / user to the company and with a clear path enters him through the open plan working space. On the one side the path ends up to the quiet spaces of the main meeting room and the executives. On the other side all secondary, auxiliary uses such as small boardrooms, WC, eating and storage areas can be found.

With a view to enhancing the aesthetics and creating a pleasant set that improves user’s stay, cultivates a climate of euphoria and increases productivity, particular emphasis was given on materiality, lighting and furnishing of the space.

In the reception and working area furniture in minimal lines, flooring in neutral colors, hidden lighting and green elements compose an environment of tranquility. Decorative elements - such as lightweight curtains, wall mounted representations, metal constructions, hanging foliage from ceiling frames, create an atmosphere of comfort, project company’s identity, divide uses discretely, help sound absorption and cater daily needs.

Executive spaces are coated with vinyl flooring in natural oak and decorative three dimensional elements on vertical surfaces. Projection screens and small meeting tables are inserted in each room to serve daily meeting updates. Metal or crystal partitions enclose  founders’ areas according to isolation and privacy requirements.

Meeting rooms are coated with bold colors on both horizontal and vertical surfaces. Vivid reds, yellows and green vinyl floors that continue on walls contribute to the rooms’ brightness and character.

Last but not least, special attention has been given to lighting which in some cases is atmospherical (hidden linear lights) and in other efficient (direct pl) or even iconic (w.c). In all cases, lighting elements guide the visitor, attribute to the space’s identity and allow the user to create the desired atmosphere.